Наши работы

Контакты

Штаб Строительства №2

Нет на складе
Есть в наличии
0
12 500 000
+
Способы доставки

В целях вашего удобства и безопасности, доставка осуществляется собственным парком машин, в любую точку РФ.

Описание

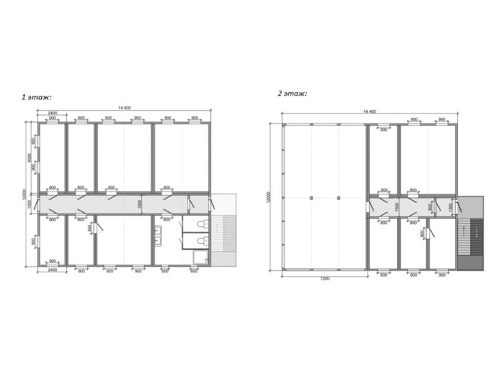
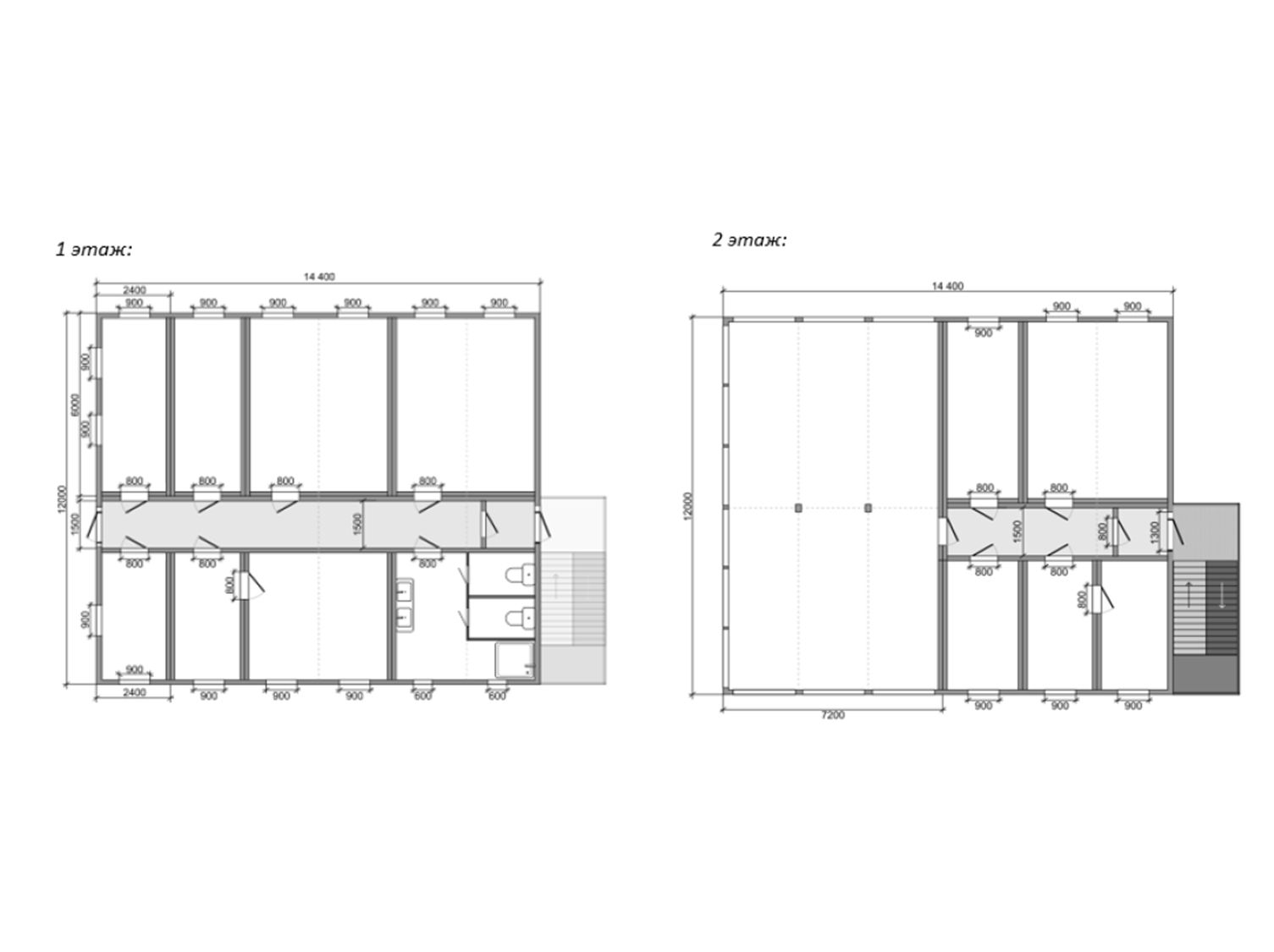
Спецификация: Модульное строение контейнерного типа 14.4 х 12.0 х 6.7

Характеристика

Данные по спецификации

Размеры:

 Внешние:

Д х Ш х В: 14.4 х 12.0 х 6.7 м.

Масса:

Не более 50000 кг.

Каркас, несущий:

Металлический, сварной.

Кровля:

Кровля блок-контейнеров: плоская. Лист оцинкованный. Кровля модульного строения: Двухскатная. Лист профилированный НС-35 с полимерным покрытием (RAL по согласованию).

Пространственные металлические фермы: труба профильная 60х40 мм. Высота в коньке 1500 мм. Фронтоны подшиты профилированным листом С-8 с полимерным покрытием.

Решетка вентиляционная – 2 шт.

Отделка:

Наружная:

Профилированный лист С-8 полимерным покрытием (RAL по согласованию).

Внутренняя:

Стены: ЛДСП, (на кухне и туалетах ПВХ панель).

Потолок: ПВХ панель.

Утепление:

Стены, потолок – минеральная плита Knauf Insulation.

Толщина – 100 мм. Паро-гидроизоляционная мембрана.

Пол:

Оцинкованный лист. Гидро-ветрозащита, тип «А». Утепление 150 мм. Пароизоляция, тип «В». Доска 40х100 мм. ОСП 15 мм. Линолеум п/коммерческий. Плинтус ПВХ.

Входная группа:

Металлическая дверь заводского изготовления (Россия), с врезным замком, доводчиком и ручкой прижимом. 970х2070 мм – 4 шт.

Внутренние двери:

Ламинированная МДФ дверь, 800 х 2000 мм – 16 шт.

 

Окраска:

Каркас: грунт-эмаль по металлу.

Окна:

ПВХ, 900 х 1000 мм, трёх-камерный профиль, двухкамерный стеклопакет, поворотно-откидное – 18 шт.

ПВХ, 600 х 600 мм, трёх-камерный профиль, двухкамерный стеклопакет, поворотно-откидное – 4 шт.

ПВХ, 2000 х 2000 мм, трёх-камерный профиль, двухкамерный стеклопакет, глухое – 6 шт.

ПВХ, 5700 х 2000 мм, трёх-камерный профиль, двухкамерный стеклопакет, глухое – 2 шт.

Электропроводка:

Кабель медный ВВГнг 3,0 х 2,5 мм (розетки).

Кабель медный ВВГнг 2,0 х 1,5 мм (освещение).

Уложен в ПВХ кабель канал (наружным способом), подключение блок-контейнеров осуществляется при помощи WAGO клем, или аналог (для удобной сборки-разборки и дальнейшей передислокации модулей)

Выключатель одноклавишный.

Розетка силовая – 48 шт.

Светильник светодиодный, LED – 48 шт. Расположение по согласованию с Заказчиком.

Автоматический выключатель 16А – розетки.

Автоматический выключатель 10А – освещение.

Вентиляция:

Вентилятор вытяжной – 2 шт.

Отопление, кондиционирование:

Электрический конвектор, 1.5 кВт – 24 шт.

Сплит-система RODA RS-A07F/RU-A07F, 2.2 кВт – 12 шт.

Сантехника:

Унитаз с бачком – 2 шт.

Кабинка разделительная из алюминиевого каркаса и ЛДСП – 2 шт.

Раковина со смесителем – 2 шт.

Водонагреватель, 100 л – 1 шт.

Бак для воды, 1000 л – 2 шт.

Насосная станция – 2 шт.

Разводка ХВС, ГВС, канализации и фановой трубы с выводом наружу.

Пожарная сигнализация

 

Лестничный марш:

Лестничный марш из металлического швеллера №10.

Ступени и площадка из металлического уголка с покрытием ПВЛ (просечно-вытяжной лист).

Характеристики
  • Каркас:
    Металлический, сварной
  • Кровля:
    Лист профилированный НС-35 с полимерным покрытием (RAL по согласованию)
    Пространственные металлические фермы: труба профильная 60х40 мм
    Фронтоны подшиты профилированным листом С-8 с полимерным покрытием
    Решетка вентиляционная – 2 шт
    Кровля блок-контейнеров: плоская
    Лист оцинкованный
    Кровля модульного строения: Двухскатная
    Высота в коньке 1500 мм
  • Утепление:
    Стены, потолок – минеральная плита Knauf Insulation. Толщина – 100 мм. Паро-гидроизоляционная мембрана
  • Пол:
    Оцинкованный лист
    Плинтус ПВХ
    Доска 40х100 мм
    Линолеум п/коммерческий
    Гидро-ветрозащита, тип «А»
    Утепление 150 мм
    Пароизоляция, тип «В»
    ОСП 15 мм
  • Входная группа:
    Металлическая дверь заводского изготовления (Россия), с врезным замком, доводчиком и ручкой прижимом. 970х2070 мм – 4 шт
  • Электропроводка:
    Кабель медный ВВГнг 3,0 х 2,5 мм (розетки)
    Кабель медный ВВГнг 2,0 х 1,5 мм (освещение)
    Автоматический выключатель 16А – розетки
    Автоматический выключатель 10А – освещение
    Выключатель одноклавишный
    Уложен в ПВХ кабель канал (наружным способом), подключение блок-контейнеров осуществляется при помощи WAGO клем, или аналог (для удобной сборки-разборки и дальнейшей передислокации модулей)
    Розетка силовая – 48 шт
    Светильник светодиодный, LED – 48 шт. Расположение по согласованию с Заказчиком
  • Сантехника:
    Раковина со смесителем – 2 шт
    Унитаз с бачком – 2 шт
    Кабинка разделительная из алюминиевого каркаса и ЛДСП – 2 шт
    Водонагреватель, 100 л – 1 шт
    Бак для воды, 1000 л – 2 шт
    Насосная станция – 2 шт
    Разводка ХВС, ГВС, канализации и фановой трубы с выводом наружу
  • Размеры (Д х Ш х В):
    14.4 х 12.0 х 6.7 м
  • Масса:
    Не более 50000 кг
  • Отделка:
    Наружная: Профилированный лист С-8 полимерным покрытием (RAL по согласованию)
    Внутренняя: Стены: ЛДСП, (на кухне и туалетах ПВХ панель). Потолок: ПВХ панель
  • Окраска:
    Каркас: грунт-эмаль по металлу
  • Внутренние двери:
    Ламинированная МДФ дверь, 800 х 2000 мм – 16 шт
  • Окна:
    ПВХ, 900 х 1000 мм, трёх-камерный профиль, двухкамерный стеклопакет, поворотно-откидное – 18 шт
    ПВХ, 600 х 600 мм, трёх-камерный профиль, двухкамерный стеклопакет, поворотно-откидное – 4 шт
    ПВХ, 2000 х 2000 мм, трёх-камерный профиль, двухкамерный стеклопакет, глухое – 6 шт
    ПВХ, 5700 х 2000 мм, трёх-камерный профиль, двухкамерный стеклопакет, глухое – 2 шт
  • Вентиляция:
    Вентилятор вытяжной – 2 шт
  • Отопление, кондиционирование:
    Электрический конвектор, 1.5 кВт – 24 шт
    Сплит-система RODA RS-A07F/RU-A07F, 2.2 кВт – 12 шт
  • Лестничный марш:
    Лестничный марш из металлического швеллера №10. Ступени и площадка из металлического уголка с покрытием ПВЛ (просечно-вытяжной лист)
Отзывы
Пока нет комментариев
Написать отзыв
Имя*
Email
Введите комментарий*